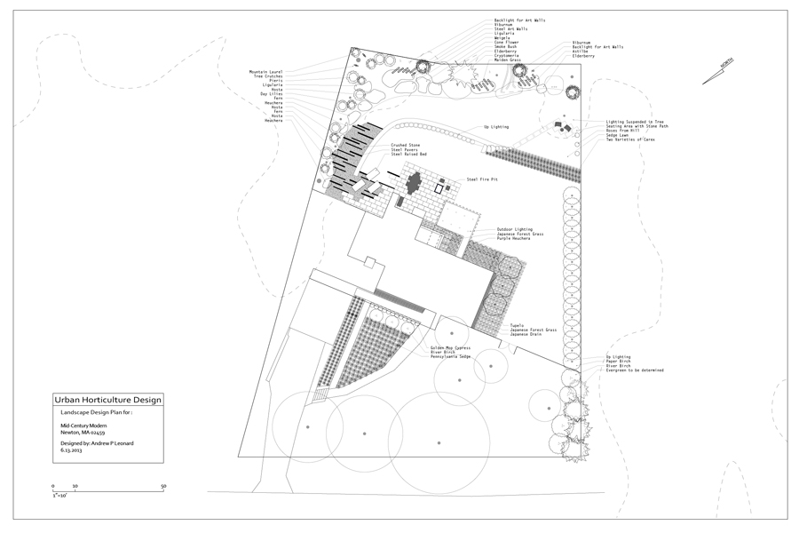
The Mid-Century Modern project began with a master plan of the entire site. The clients had purchased the property three years ago and had been renovating both inside and out. After working away on their own in the yard during that time they decided they needed a vision for the entire space that could be phased in over the coming years. The design for the landscape uses simple clean lines in the main gardens around the house to compliment the clean lines of the architecture while the edge of the property has a stylish yet naturalistic feeling to blend with the adjoining properties, making the entire space seem larger.
Phase 1 of the project was the regrading, terracing and planting of the large slope in the center of the yard and a cleanup along the back property line that included reorganization of existing perennials into larger groupings and the addition of a Smokebush, Japanese Cedar and four Viburnum. We decided to do these areas as they have a huge visual impact from the house, being visible from the living room, dining room, kitchen and the clients home office.
This is what it looked like before.


